Appartement - Saint-Paul


Réf. EP3419
Saint-Paul - 97460
Situé dans la commune très recherchée de Saint-Paul (97460), cet appartement de type T3 d’une surface de 65,10 m² bénéficie d’un emplacement privilégié au cœur de l’Ouest de l’île.

Ville emblématique de La Réunion, Saint-Paul séduit par sa qualité de vie et son dynamisme économique. Elle offre :

? un accès rapide aux plages de l’Ouest et à Saint-Gilles-les-Bains
? une proximité immédiate avec Le Port et Saint-Denis
? de nombreux commerces, écoles et services
? un cadre de vie agréable entre littoral, marché forain et espaces naturels

Un secteur particulièrement recherché pour une résidence principale comme pour un investissement locatif.

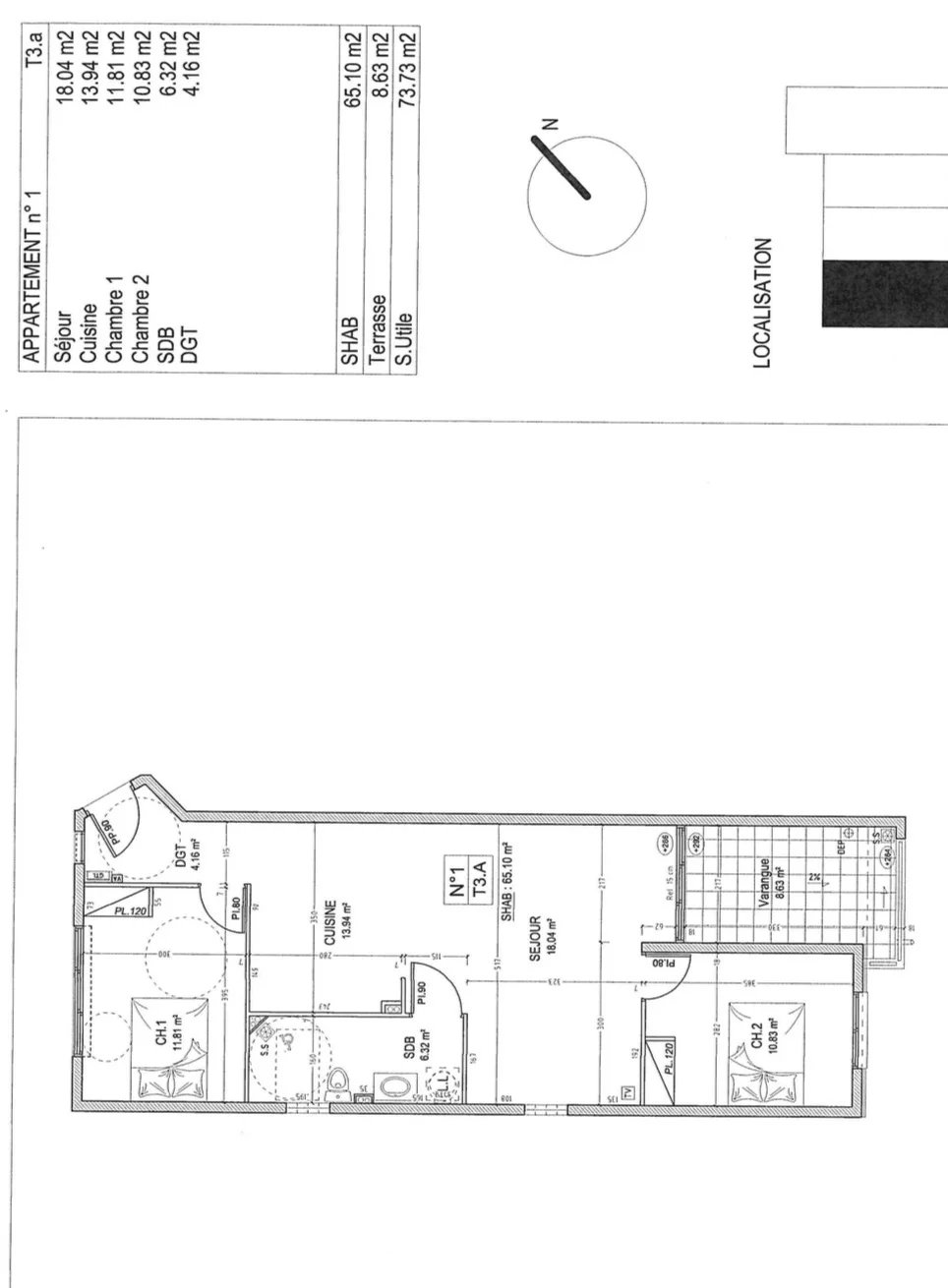
APPARTEMENT T3 – 65,10 m²

Cet appartement fonctionnel et lumineux est situé au sein d’une résidence en copropriété.

Composition

Séjour spacieux
Cuisine
Deux chambres
Salle de bains
WC

L’agencement des pièces offre confort et praticité au quotidien.

Les atouts du bien

? Situation privilégiée dans l’Ouest de l’île
? Proximité immédiate des commodités
? Accès rapide aux axes principaux
? Appartement idéal pour habiter ou investir

Investissement locatif – Secteur Saint-Paul

Le marché locatif de l’Ouest reste très dynamique avec une forte demande locative, notamment pour les appartements de type T3.

Estimation de loyer

Surface : 65,10 m²

? Loyer estimé : 1 100 € à 1 200 € / mois

? Revenus locatifs annuels estimés :
13 200 € à 14 400 €

Un rendement attractif dans un secteur à fort potentiel locatif et patrimonial.

Un bien idéal

Cet appartement constitue :

? un excellent investissement locatif sécurisé
? une résidence principale confortable
? un bien patrimonial dans l’Ouest de La Réunion

? Prix : 264 869 € – Honoraires charge vendeur
? Référence annonce : EP3419
Appartement vendu libre de toutes occupations , vendu dans une copropriété de 12 lots
Montant moyen annuel de la quote part de charges courantes: 1512€
Aucune procédure en cours menée sur le fondement de l'article 29-1 A et 29-1 de la loi n° 65-557 du 10 juillet 1965 et de l'article L. 615-6 du CCH

Annonce proposée par :
Eve PARIS – Négociatrice en immobilier

? 0262 25 89 71
? 0692 77 59 24
? eve.paris@lemerle-riviere.re

CABINET LEMERLE ET RIVIERE by Kazanou
45 bis rue du Four à Chaux
97410 Saint-Pierre
Informations sur les risques :
www.georisques.gouv.fr
Nos honoraires :
www.lemerle-riviere.re/honoraires.pdf


Nombre de lots de la copropriété : 15
Charges annuelles : 2404 € / an
Taxe foncière : 1389 €
Les informations sur les risques auxquels ce bien est exposé sont disponibles sur le site Géorisques https://www.georisques.gouv.fr
264 869 €
honoraires charge vendeur
Etage
1
Nombre de pièces
3
Surface habitable
65 m2
Proximité
Aéroport, Autoroute, Centre ville, Cinéma, Commerces, École primaire, Gare routière, Hôpital/clinique, Médecin, Mer, Supermarché
Nombre d'étages
2
Nature chauffage
Eau chaude
Orientation
Sud
Vue
: Campagne
Etat général intérieur
Bon état
Nous contacter Imprimer